

Qubic Concept "A" 2 dormitorios
Qubic Concept "B" 3 dormitorios

Qubic Concept "C" 1 dormitorios

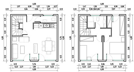
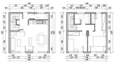
Distribución
Planta baja: La planta baja consta de una amplia y espaciosa estancia diáfana, de unos 25 m2, con cocina americana, salón y comedor. Tiene además un aseo, que en función de las necesidades del cliente se puede convertir en despensa o cuarto de lavadora/secadora. Aprovechando el hueco de la escalera dispone de un pequeño cuarto trastero. Esta planta además tiene salida al jardín que ayuda a percibir la estancia mucho más amplia.
Primera de arriba: Dispone de 2 habitaciones y un baño completo. La habitación principal tiene vestidor en su interior.
Una distribución pensada para aprovechar al máximo el espacio, al mismo tiempo que ser crean espacios cómodos y comfortables.
Se trata de unas casas que venden en España, la empresa CasaMisura, llamadas QubicHouse Concept. Estan lindas verdad? pueden ver fotos y más información en Fachadas Casas por dentro.
Y si quieren comprar estas casas pueden hacerlo en casamisura.com
Fuentes: casamisura.com via Planos de casas




